唐山将新建10层楼住宅小区!
唐山信息港 发表于:2026-4-2 22:52 复制链接 看图 发表新帖
阅读数:227
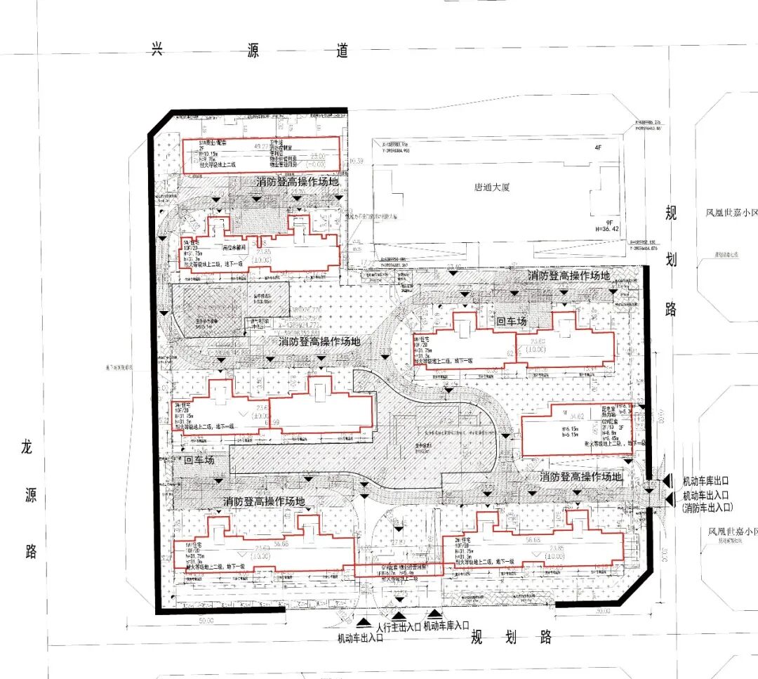
唐山自然资源规划局发布凤栖观宸项目规划公示
0891c457b8c15529934c6dc79e8305be.png
建设单位名称:唐山市富宇房地产开发有限公司
建设项目名称:凤栖观宸项目
建设项目位置:唐山市路北区龙源路以东、兴源道以南
建设规模:总建筑面积52150.96㎡;地上建筑面积33975.47㎡;地下建筑面积18175.49㎡
建设层数:10层
建设高度:31.75米
根据规划公示图来看将建设5栋住宅楼、2层的商业配套楼
73c84e8af75a2725555f87ed8b631883.jpg
设置机动车停车位292个地上停车位9个,地下停车位283个非机动车停车位453个地上电动车停车位223个,地下181个
fe93fb2364d62f87c144ad4a356bf705.png
c822ae38b0a64c5cbe5542d6d8eba7b1.png
ab01d40a47a831a47e0b6c90fe9fe323.png
f983b5177ff5d8b3c47eb8b322139a94.png
b26515a4793b8dd515cc16a1c4be75b9.png
返回列表 使用道具 举报
条评论
您需要登录后才可以回帖 登录 | 立即注册
相关推荐
©2001-2021 唐山信息港 http://www.tsxxg.com冀ICP备16001780号-4
首页联系我们客服微信:14369595Comsenz Inc.